아래처럼 A4 용지에 자를 이용하여 제작 합니다.

문서로 만들기
필자는 한글2018 워드프로세서 프로그램을 이용하여 ,
평면도를 문서로 만들었습니다.

문서 를 만들때, 용도/면적 을 기록 하면, 신고절차가 쉽게 이루어 집니다.
지자체 마다 조금 다르지만, 용도/면적을 미 기록시 신고절차가 반려 되기도 합니다.
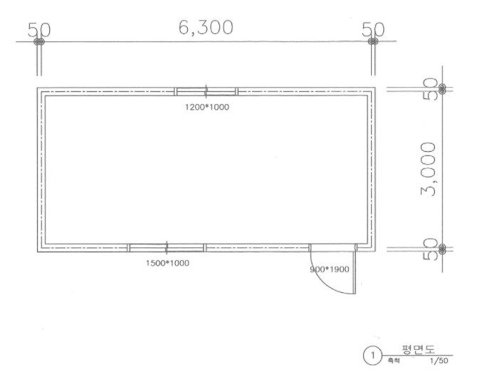
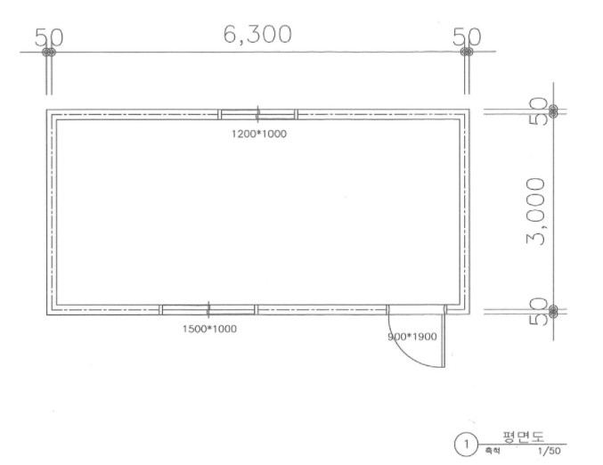
위 이미지의 경우는 평면도 작업은 스케치업 프로그램을 이용하여 제작되었습니다.
A4 용지에 그린 평면도를 문서화 하려면,
그린 평면도를 핸드폰 카메라 기능을 이용하여 촬영한후,
컴퓨터로 이미지를 전송 합니다.
(스마트폰에서 메일 보내기 한후, 컴퓨터에서 메일 보기 하면 쉽게 보낼수 있습니다.)
이미지 편집 프로그램을 이용하여, 이미지의 불필요한 부분을 삭제 한후, 저장 합니다.
한글 문서 작성 프로그램에서 이미지 넣기 한후, 용도/면적 등을 기록후 문서를 저장 합니다.
평면도.hwp 문서가 만들어 졌습니다.
'잡다한 지식' 카테고리의 다른 글
| 세움터에 농막 도면 첨부하기 (0) | 2021.06.16 |
|---|---|
| 농막 신고서 제출하기 (0) | 2021.06.16 |
| 농막(가설물) 축조신고서 작성 방법 (0) | 2021.06.15 |
| 지적도 출력하여 농막 배치도 만들기 (0) | 2021.06.15 |
| 카카오톡 대화내용 삭제 (0) | 2020.12.01 |